Miller House Precedent Study
BriefThe purpose of this Project was to study and draw the precedents of a historical modernism house. In a group I studied The Miller House.
Presentation
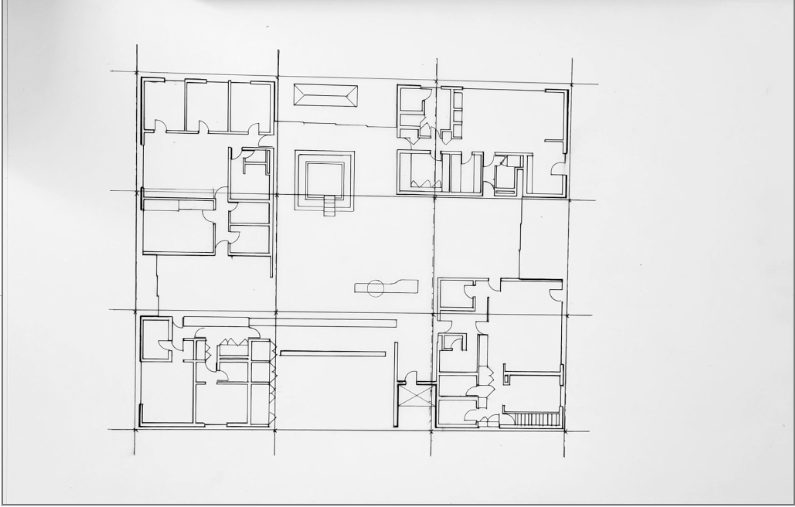
Orthographic Drawings
Diagrams
Parti Model
ReflectionWith the use of my parti diagram, I followed the nine square grid the house followed. The model was based on my idea of how to make the nine square grid with the layering of the wood pieces. I also wanted the pods the represent to private spaces to be subtracted from the blocks. To have full representation of the space visualized in the parti model, I measured the plan orthographic drawing to create scaled spacing between the pods and the spacing between the blocks. We really wanted the model to reflect the house, so we painted the model White to reflect the plan coloring on the exterior of the house. through this project, of creating a 3D space from a 2-dimensional drawing, I learned there are some translations and measurements that make the shaping of the model difficult to transcribe from the drawings.

